
Loft Urban
Loft residencial de doble altura
Loft urban
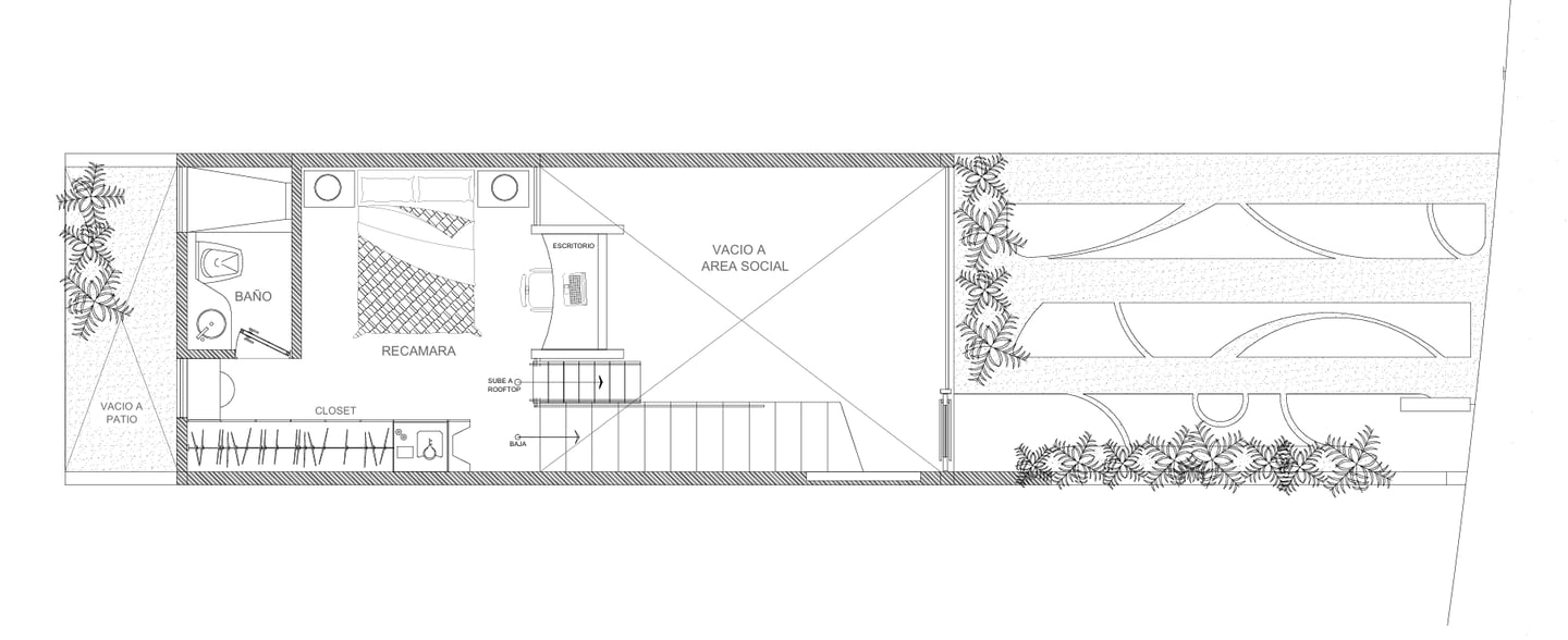
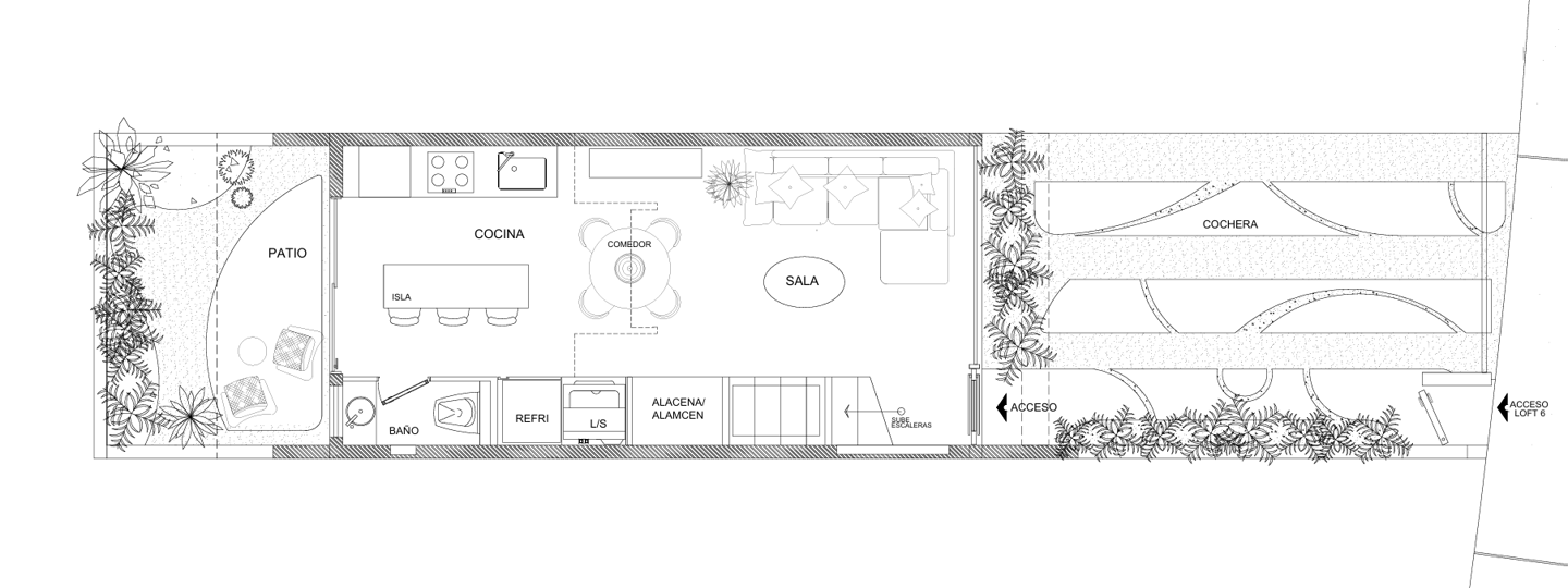
64 metros cuadrados con doble planta, mezanine y mucho luz natural que crea un ambiente cálido y amplio.


Espacio único
Estilo industrial
Inspirado en los lofts neoyorquinos, con estacionamiento privado y una cocina integrada para vivir con estilo.
Desde
2,490,000


Loft
Espacio de 64m² con mezzanine y rooftop














Recorrido Virtual

Ubicación ideal
Este loft urbano de doble planta está en una zona vibrante con acceso a luz natural y un rooftop encantador.
Dirección
Colonia Mision del Sol, Hermosillo Sonora
